Appartment in Roma

Roma

Appartment in sale

Appartment in Roma

Roma

Vicolo Dei Serpenti - 5

Prezzo 790.000,00€

Spese di condominio: 68,00€ Disponibile Subito


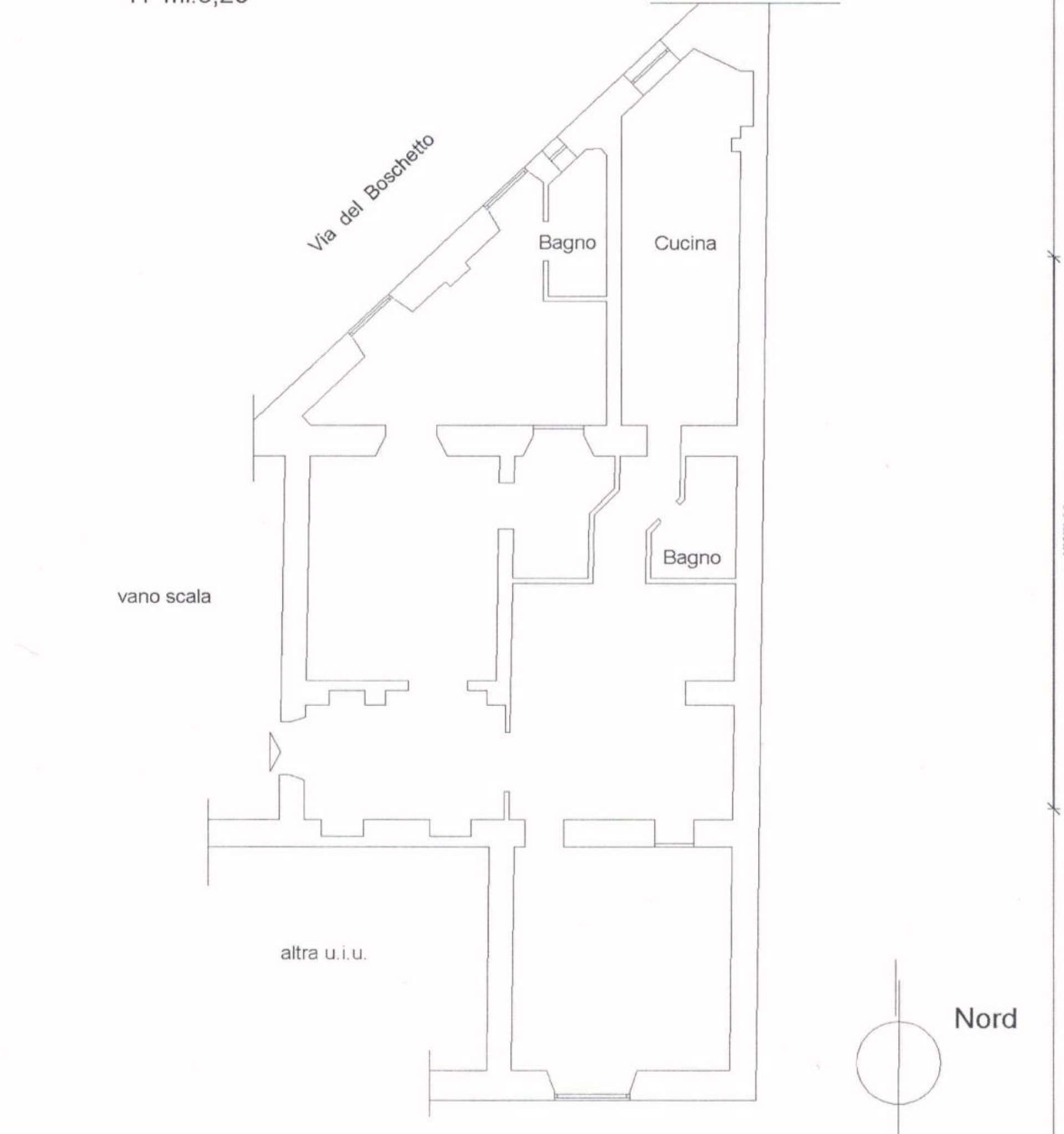
  • Totale mq

    119

  • Locali

    4

  • Camere

    2

  • Bagni

    2


Descrizione

  • Classe energetica: Not specified

Informazioni

  • m2 calpestabili

    119

  • Piano - TOT Piani

    1 su 5

  • Posizione

    Central

  • Anno di costruzione

    1600

  • Stato di conservazione

    good

  • Stato attuale

    Free at the deed

  • Disponibilità

    Subito

  • Bagni

    2

Servizi e accessori

  • Riscaldamento

    Autonomous

  • Arredato

    Partially furnished with kitchen

Posizione e caratteristiche della zona

/ /

Fill the module

 
 

Potrebbe Interessarti Anche